설비 제어에 사용되는 PLC 및 DCS 는 PANEL에 수납되어 현장에 설치됩니다.현장 상황에 맞게 PANEL 설계 및 제작 납품 설치 전 과정을
수행할 능력을 보유하고 있습니다. 또한 자체 공장을 보유하여 제작 및 현장 검수가 가능합니다.
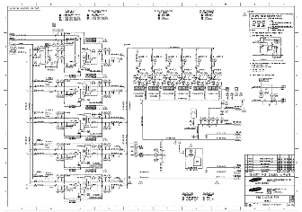
(Panel Drawing & Manufacturing)
설비 제어에 사용되는 PLC 및 DCS 는 PANEL에 수납되어 현장에 설치됩니다.현장 상황에 맞게 PANEL 설계 및 제작 납품 설치 전 과정을
수행할 능력을 보유하고 있습니다. 또한 자체 공장을 보유하여 제작 및 현장 검수가 가능합니다.
1. 도면 분석도면을 분석하여 IO List작성.


2. 설계IO List를 바탕으로 H/W 수량 산출 후 Panel 설계.


3. Panel 제작설계 도면을 바탕으로 Panel 제작.

4. FAT고객 입회 하에 제작된 Panel 검수.

5. Panel 포장검수 완료된 Panel 포장.

6. 출하/납품/설치고객사에 납품 및 설치.

